• Неэксплуатируемое покрытие;
  • Утепленное неэксплуатируемое покрытие;
  • Утепленное неэксплуатируемое покрытие с битумной пароизоляцией;
  • Утепленное экплуатируемое покрытие;
  • Утепленное экплуатируемое покрытие с битумной пароизоляцией;
  • Утепленное покрытие с интенсивным озеленением;
  • Неэксплуатируемое инверсионное покрытие;
  • Эксплуатирумое инверсионное покрытие;
  • Инверсионное покрытие с интенсивным озеленением;
  • Воронки с горизонтальным выпуском на утепленном неэксплуатируемом покрытии;
  • Покрытие с несущим профилированным листом.

Получить чертежи



 

Содержание
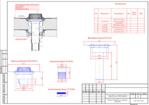
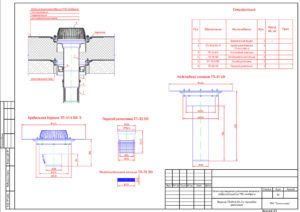
Лист 1
Соединение с полимерными раструбными трубами:

Неэксплуатируемое покрытие
ТП-01.У.100-Э
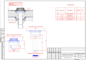
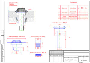
Лист 2
Соединение с полимерными раструбными трубами:

Неэксплуатируемое покрытие
ТП-01.У.100-Э с ремонтным переходом
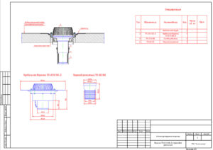
Лист 3
Соединение с металлическими безраструбными трубами:

Неэксплуатируемое покрытие
ТП-07.У.100/4-Э
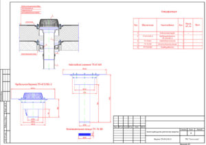
Лист 4
Соединение с полимерными раструбными трубами:

Неэксплуатируемое покрытие с битумной гидроизоляцией
ТП-01.У.100/В-Э
Лист 5
Соединение с полимерными раструбными трубами:

Неэксплуатируемое покрытие с битумной гидроизоляцией
ТП-01.У.100/B-Э с переходом ремонтным
Лист 6
Соединение с металлическими безраструбными трубами:

Неэксплуатируемое покрытие с битумной гидроизоляцией
ТП-07.У.100/4/B-Э с битумной гидроизоляцией
Лист 7
Соединение с полимерными раструбными трубами:

Неэксплуатируемое покрытие с гидроизоляцией из ПВХ мембраны
ТП-01.У.100-Э с ПВХ мембраной
Лист 8
Соединение с полимерными раструбными трубами:

Неэксплуатируемое покрытие с гидроизоляцией из ПВХ мембраны
ТП-01.У.100-Э с ПВХ мембраной с переходом ремонтным
Лист 9
Соединение с металлическими безраструбными трубами:

Неэксплуатируемое покрытие с гидроизоляцией из ТПО мембраны
ТП-01.У.100-Э с ТПО мембраной
Лист 10
Соединение с полимерными раструбными трубами:

Неэксплуатируемое покрытие с гидроизоляцией из ТПО мембраны
ТП-01.У.100-Э с ТПО мембраной, с переходом ремонтным
Лист 11
Соединение с металлическими безраструбными трубами:


Утепленное неэксплуатируемое покрытие


Утепленное неэксплуатируемое покрытие
ТП-09.У.100-Э
Лист 12
Соединение с полимерными раструбными трубами:

Утепленное неэксплуатируемое покрытие
ТП-09.У.100-Э с переходом ремонтным
Лист 13
Соединение с металлическими безраструбными трубами:

Утепленное неэксплуатируемое покрытие с битумной гидроизоляцией
ТП-09.У.100/В-Э
Лист 14
Соединение с полимерными раструбными трубами:

Утепленное неэксплуатируемое покрытие с битумной гидроизоляцией
ТП-09.У.100/В-Э с переходом ремонтным
Лист 15
Соединение с металлическими безраструбными трубами:

Утепленное неэксплуатируемое покрытие с битумной гидроизоляцией
ТП-09.У.100/В-Э с армированной бетонной стяжкой
Лист 16
Соединение с полимерными раструбными трубами:

Утепленное неэксплуатируемое покрытие с ПВХ мембраной
ТП-09.У.100-Э с ПВХ мембраной
Лист 17
Соединение с полимерными раструбными трубами:

Утепленное неэксплуатируемое покрытие с ПВХ мембраной
ТП-09.У.100-Э с ПВХ мембраной с переходом ремонтным
Лист 18
Соединение с металлическими безраструбными трубами:

Утепленное неэксплуатируемое покрытие с гидроизоляцией из ТПО мембраны
ТП-09.У.100-Э с ТПО мембраной
Лист 19
Соединение с полимерными раструбными трубами:

Утепленное неэксплуатируемое покрытие с гидроизоляцией из ТПО мембраны
ТП-09.У.100-Э с ТПО мембраной с переходом ремонтным
Лист 20
Соединение с металлическими безраструбными трубами:

Связаться с нами